Below are assignments completed throughout GW's MFA program including hand sketches, hand drafting, and a group project reproducing a Herzog and de Meuron chair.
Hand-sketch completed during Studio III
Hand-sketch completed during sketching class
Perspective drawing assignment
Perspective drawing assignment
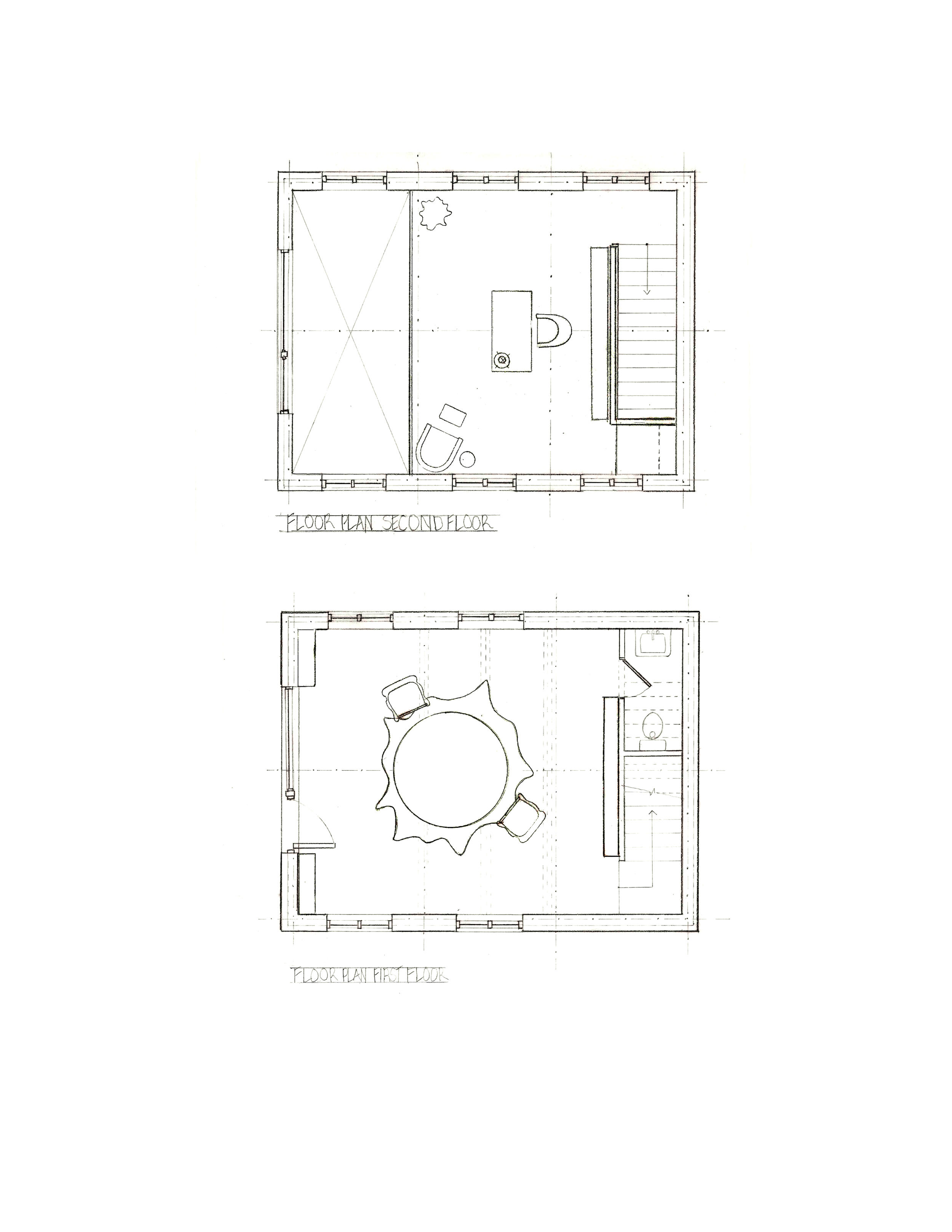
Hand drafting a furniture plan for a writer's retreat
Hand drafting furniture in section for a writer's retreat
Group project in Studio I replicating the Herzog & de Meuron Nose to Tail Chair (completed with Shuree Batbold)